KYN61 40.5(Z) Metal Enclosed Switchgear for Indoor Use vcb panel
Summary
KYN61-40.5(Z) vcb panel armored movable AC metal enclosed switchgear is a complete indoor power distribution unit designed for three-phase AC systems with a frequency of 50Hz and a rated voltage of 40.5kV. It is widely used in power plants, substations, and industrial or mining enterprises for the reception and distribution of electrical energy. This switchgear provides reliable circuit control, protection, and monitoring, and is especially suitable for locations requiring frequent operation. The robust metal-clad design ensures operational safety and system stability in high-voltage environments. The product complies with national and industry standards, including GB/T11022, GB3906, and DL404, ensuring high performance, reliability, and safety across a wide range of indoor medium-voltage applications.
Model meaning

Conditions of use
Operating Environment Conditions • Ambient air temperature: maximum +40°C, minimum -15°C • Relative humidity:
• Daily average ≤ 95%
• Monthly average ≤ 90% • Water vapor pressure:
• Daily average ≤ 2.2 kPa
• Monthly average ≤ 1.8 kPa • Altitude: not exceeding 1000 meters • Seismic intensity: ≤ 8 degrees on the Richter scale • The surrounding air must be free from corrosive or flammable gases, excessive dust, water vapor, or any substance causing significant pollution • The installation site should not be subject to severe vibration If the product is intended for use beyond the normal service conditions specified in GB3906, special arrangements must be agreed upon between the user and the manufacturer.
Product features
The cabinet adopts a modular assembled structure,
while the circuit breaker features a handcart-mounted floor design.Integrated with a new composite insulated vacuum circuit breaker,
offering excellent interchangeability and easy replacement.The handcart frame includes a screw-nut drive mechanism,
enabling smooth movement and protecting the drive system from misoperation damage.All operations can be performed with the cabinet door closed,
enhancing safety during use.The system employs a mechanical interlock between the main switch,
handcart, and the cabinet door to ensure full compliance with
The "Five Prevention" safety functions.Ample internal space is provided for convenient cable connection.
A quick-action grounding switch is used to ensure safe grounding
and circuit shorting where necessary.The enclosure meets IP3X protection standards.
when the handcart door is open, the protection level remains at IP2X.Designed and manufactured in full compliance with GB3906, DL404,
and international IEC 298 standards.
Main technical parameters of vacuum circuit breaker

Dimensions

Main technical parameters of spring operating mechanism

Installation of switch cabinet

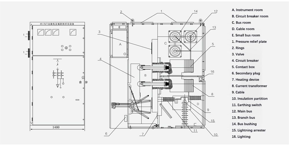
Equipment structure diagram









