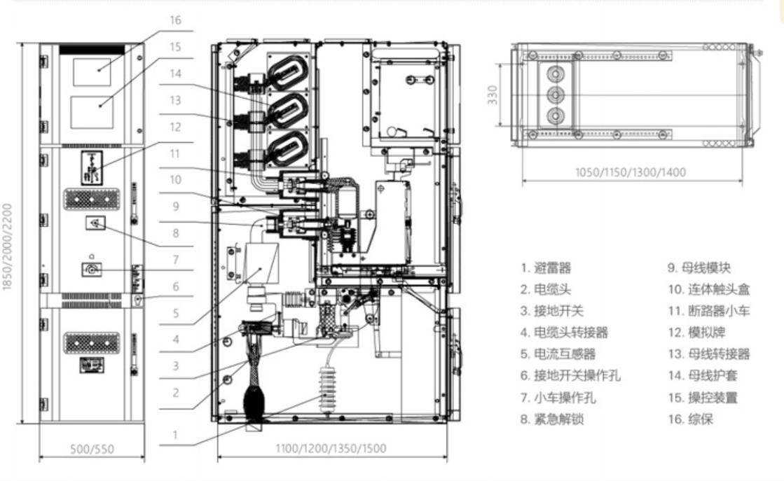
KYN550-12 Indoor Armored Removable AC Metal-Clad Switchgear
Overview
Preventing withdrawal/insertion of the circuit breaker truck under load
Preventing the incorrect opening/closing of the circuit breaker
Preventing the closing of the circuit breaker when the earthing switch is closed
Preventing entry into live compartments
Preventing the closing of the earthing switch when the compartment is live
Standards
Protection rating of enclosure: IP4X
Protection rating when the circuit breaker compartment door is open, andthe truck is removed: IP2X

Environmental Conditions for Use
Normal Operating Conditions
Ambient air temperature: -25°C to +40°C
Humidity: Daily average ≤95%, monthly average ≤90%
Seismic intensity: ≤8 degrees
Ambient air: Free from corrosive/flammable gases, water vapor, or heavy pollution
Vibration: No severe pollution or continuous strong vibration; meets Class 1 requirements under harsh conditions
Special Operating Conditions
Product Features
✅ Eco-friendly: Uses recyclable, non-polluting materials✅ Safe & Reliable: Fully enclosed metal enclosure with visible isolation breaks for operator safety✅ Compact & Cost-effective: One of the smallest switchgears in its class, reducing civil engineering costs and enabling easy retrofits✅ Intelligent: Supports automatic protection devices and online monitoring for full automation in smart grids✅ Customizable: Tailored solutions available for specific customer requirements

Technical Parameters
| Parameter | Unit | Specification |
|---|---|---|
| Rated voltage | kV | 12 |
| Rated frequency | Hz | 50 |
| Power frequency withstand voltage (1min) | kV | 42/48 (breaker open) |
| Lightning impulse withstand voltage (peak) | kV | 75/85 (breaker open) |
| Rated current | A | ≤ 1250 |
| Rated short-time withstand current (4s) | kA | ≤ 31.5 |
| Rated peak withstand current | kA | ≤ 80 |
| Main circuit resistance | μΩ | ≤ 100 + CT² (includes CT DC resistance) |
| Protection rating - Enclosure | - | IP4X |
| Protection rating - Breaker compartment open | - | IP2X |
1. The short-time and peak withstand currents of current transformers (CTs) depend on their ratio, which must be specified when ordering.
2. Main circuit resistance includes the DC resistance of current transformers.

Frequently Asked Questions (FAQ)
1. What does the "five-prevention" interlock system include?
Withdrawal/insertion of the circuit breaker truck under load
Incorrect opening/closing of the circuit breaker
Closing of the circuit breaker when the earthing switch is closed
Entry into live compartments
Closing of the earthing switch when the compartment is live
2. What do the IP4X and IP2X protection ratings mean?
IP4X: The standard enclosure rating, preventing entry of solid objects ≥1mm (e.g., dust, tools)
IP2X: The rating when the breaker compartment door is open, preventing entry of solid objects ≥12.5mm and accidental finger contact with live parts, ensuring maintenance safety
3. What practical benefits does the compact size offer?
4. How to handle humidity exceeding the standard limit?
5. What does the main circuit resistance ≤100 + CT² μΩ mean?
6. Is the switchgear upgradable for smart grid integration?
7. Why is the CT ratio important for withstanding current?
8. What customization options are available?
Additional compartment configurations
Alternative circuit breaker types
Expanded communication interfaces for monitoring systems
Enhanced protection ratings for dusty/corrosive environments
Custom internal layouts for site-specific installation








