XGN-12 Gas-Insulated Ring Main Unit – Compact & Safe Solution for 12kV Distribution
⚡ Compact Design Meets High Safety – Ideal for Urban & Renewable Power Grids
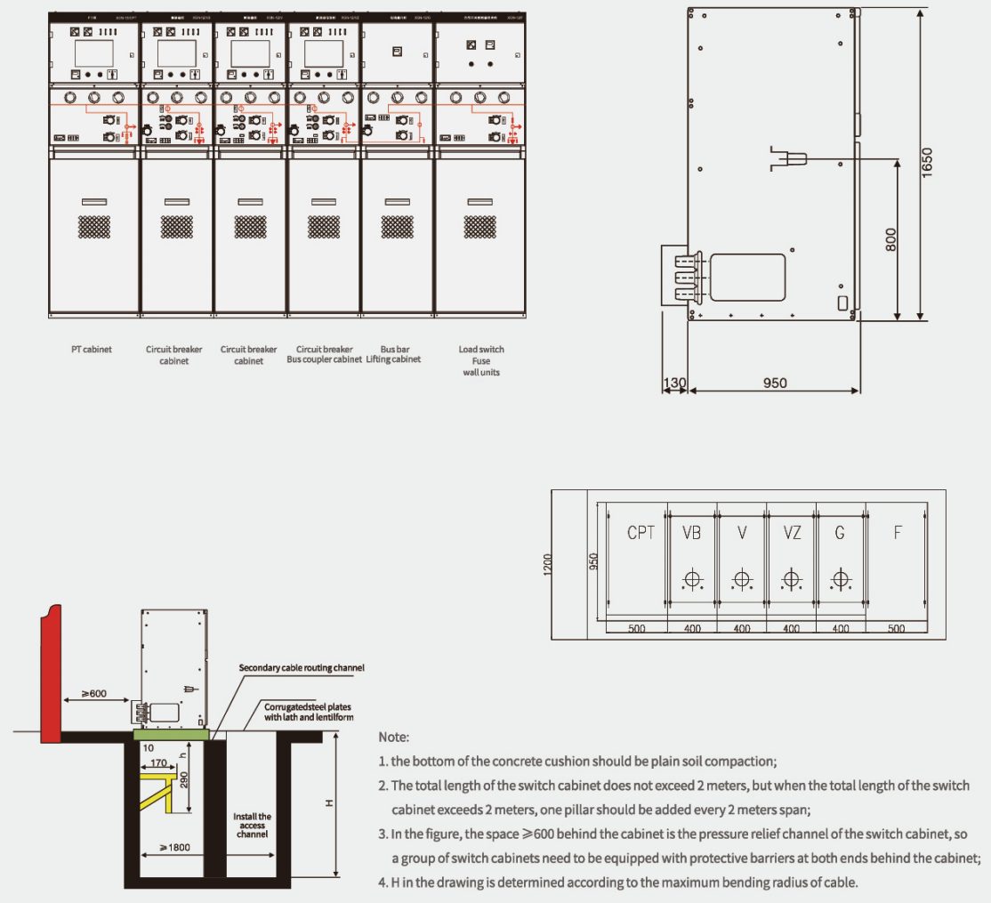
The XGN-12 Gas-Insulated Ring Main Unit (RMU) is a 12kV fully sealed switchgear system using SF6 gas insulation for superior dielectric performance and safety. It’s engineered for applications where space, reliability, and operational safety are top priorities, such as urban substations, wind farms, and industrial plants.
With a modular design, it allows various configurations—load break switch (LBS), circuit breaker (VCB), and fuse-switch combinations—making it adaptable for different grid layouts.
📊 Key Technical Specifications
| Parameter | Value |
|---|---|
| Model | XGN-12 |
| Rated Voltage | 12kV |
| Rated Current | 630A / 1250A |
| Short-Circuit Breaking Capacity | 20kA / 25kA |
| Internal Arc Classification | IAC AFL 20kA, 1s |
| Degree of Protection | IP4X (enclosure), IP2X (compartment) |
| Gas Insulation Type | SF6 |
| Mechanical Life (LBS) | ≥ 5000 operations |
| Standards | IEC 62271-200, GB/T 3906 |


✅ Why Choose the XGN-12 RMU?
Fully Enclosed & Sealed: Ensures zero maintenance and no exposure to live parts.
Arc-Proof Design: Internally arc tested per IEC 62271-200, protecting personnel and equipment.
Flexible Configuration: Modular units support VCB, LBS, metering, and protection elements.
Compact Footprint: Optimized for underground substations and container-type power rooms.
Environmental Protection: Gas-tight enclosure minimizes SF6 leakage risk.
Quick Installation: Plug-in connections and simplified cable entry.
🌍 Application Scenarios
Wind and Solar Farms: Grid interconnection and feeder isolation.
Smart Cities: Secondary substations with limited space.
Container Substations: Prefabricated or skid-mounted mobile solutions.
Industrial Campuses: Internal power distribution and backup switching.
Underground Power Distribution: Urban tunnel and metro networks.
🌐 What International Users Say
🔹 Olivia J., Grid Planner – ENEDIS (France)
“XGN-12 is our go-to RMU for solar park integration. Compact, safe, and zero maintenance.”
🔹 Bryan M., Utility Engineer – National Grid UK
“Its internal arc resistance gives us peace of mind in densely populated areas. Commissioning is also fast.”
🔹 Steven R., EPC Project Manager – Siemens Canada
“We installed 20+ units in our smart industrial zone project. The modularity saved both cost and layout time.”
🔹 Chloe W., Electrical Designer – New York Power Authority
“This unit fits perfectly in rooftop substations. Performance has been stable through 2 winters.”
🔹 Tomás F., Renewable Projects – Iberdrola Spain
“It meets our standard spec for 12kV RMUs in compact substations. Excellent sealing and fault safety.”
❓ Frequently Asked Questions
• Is XGN-12 suitable for outdoor installation?
It is mainly for indoor or sheltered environments like containers; optional outdoor cabinets are available.
• What is the expected service life?
20+ years under standard conditions with minimal gas leakage (<0.1%/year).
• Can it be equipped with a remote monitoring unit?
Yes, SCADA integration and remote SF6 density monitoring are available.
• Does it support dual-source switching?
Yes, dual incoming units and transfer switches can be configured.
• How long is the delivery time?
Typically 15–25 working days depending on configuration.
📞 Contact Us for CAD Drawings, Pricing & Lead Times
Thor – Electrical Engineer, Wei Shoe Elec
📞 Tel: +86-0577-62788197
📱 WhatsApp: +86 159 5777 0984
📧 Email: thor@weishoelec.com
Looking for a compact 12kV RMU with arc-proof reliability? The XGN-12 is your turnkey choice for safe, scalable, and efficient power distribution.








